BG 120 OPTIMA
- Dispozice - 4+kk
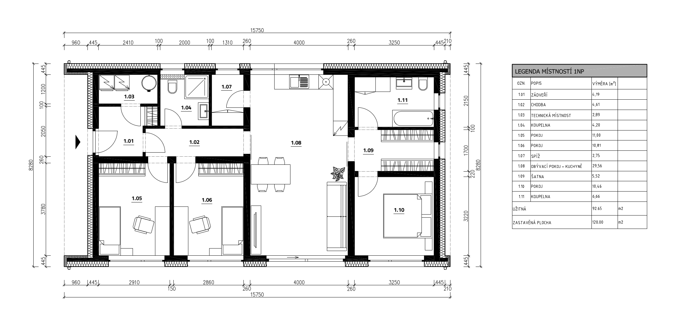
- Půdorys domu 15,75 x 8,28 m
- Užitná plocha 92,65 m²
- Zastavěná plocha 120 m²
- Sklon střechy 23°
BG 120 OPTIMA
Přízemní bungalov BG 120 OPTIMA se řadí mezi nejoblíbenější typové domy našeho partnera AVANTA SYSTEME a je skvělou volbou pro všechny, kteří hledají ideální kombinaci komfortu, kvality a cenové dostupnosti. Tento moderní typový dům přináší úsporu nákladů díky technickému rozvržení a přesně definovanému způsobu realizace, aniž by byl upozaděn komfort či kvalita domu.
Přestože dům BG 120 OPTIMA spadá do kategorie domů s užitnou plochou pod 100 m2, nabízí i tak prostornou dispozici, což z něj činí ideální volbu pro rodiny s dětmi či páry, kteří mají rádi své pracovní soukromí.
Dům BG 120 OPTIMA má dispozici 4+kk. Dispozice zahrnuje otevřený společenský prostor tvořený kuchyňským koutem s jídelnou a obývacím pokojem. Dále dva dětské pokoje, koupelnu a ložnici s vlastní prostornou šatnou pro všechny vaše outfity a vlastní koupelnou. Samozřejmostí je také technická místnost přístupná ze zádveří.
POSLAT DOTAZ
- +420 000 000 000
- info@bezcihel.cz
Adresa
- BEZCIHEL s.r.o
- C 92423/KSOS Krajský soud v Ostravě
- Třída Jiřího Pelikána 1389/5, Nová ulice
- 779 00 Olomouc
- IČ: 19268556
Kliknutím na tlačítko „ODESLAT“ souhlasíte se zpracováním vámi zadaných osobních údajů pouze za účelem zpětného kontaktování. Data zpracovávám striktně dle normy GDPR – zákon č. 110/2019 Sb. o zpracování osobních údajů. Zavazujeme se, že vámi zadané osobní údaje nebudeme nikde dlouhodobě evidovat, používat k marketingovým účelům, ani poskytovat třetím stranám. V případě podezření o zneužití prosím kontaktujte správce osobních údajů BEZCIHEL s. r. o. skrz e-mail info@bezcihel.cz




