BUNGALOV 112

BUNGALOV 112

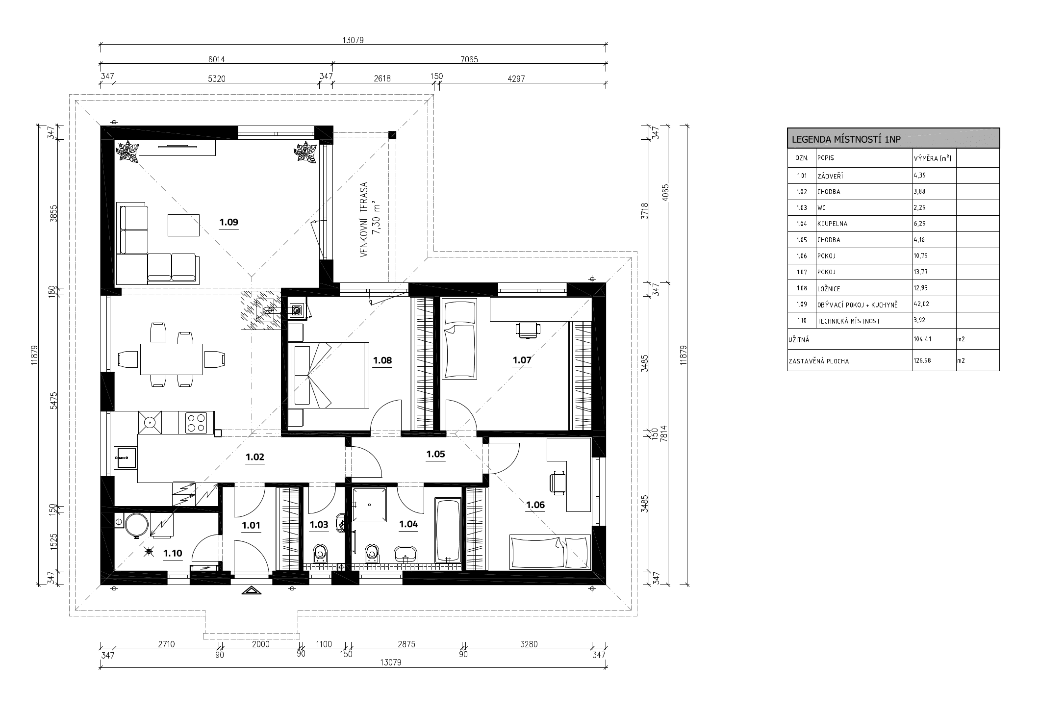
Půdorys rodinného domu BUNGALOV 112 má tvar písmene L. Tím se stává velmi praktickým pro vybudování terasy, orientované do klidnější části zahrady. Další výhodou tohoto tvaru je možnost rozšiřování na obě strany a plné využití oslunění, které je dobrým předpokladem k nízké energetické náročnosti celého domu BUNGALOV 112.

Rodinný dům BUNGALOV 105 Vás potěší nejen svou zastavěnou plochou 138.85 m2, ale také svým praktickým uspořádáním místností. Dostatečně prostorný obývací pokoj spojený s kuchyňským a jídelním koutem, poskytuje přímý přístup na terasu a zároveň je oddělen od klidové zóny domu – pokojů a ložnice. Nechybí ani velká koupelna, která umožňuje umístění vany i sprchového koutu.

POSLAT DOTAZ

Adresa

Kliknutím na tlačítko „ODESLAT“ souhlasíte se zpracováním vámi zadaných osobních údajů pouze za účelem zpětného kontaktování. Data zpracovávám striktně dle normy GDPR – zákon č. 110/2019 Sb. o zpracování osobních údajů. Zavazujeme se, že vámi zadané osobní údaje nebudeme nikde dlouhodobě evidovat, používat k marketingovým účelům, ani poskytovat třetím stranám. V případě podezření o zneužití prosím kontaktujte správce osobních údajů BEZCIHEL s. r. o. skrz e-mail info@bezcihel.cz

Stáhněte si zdarma e-book

PŘEDPROJEKTOVÁ PŘÍPRAVA

aneb jak se nespálit při koupi pozemku

Zadejte své údaje a pošleme vám e-book, ve kterém se dozvíte na co si dát pozor při koupi pozemku a jak předejít drahým chybám ještě před zahájením projektu.