KLASIK 117
- Dispozice - 4+kk
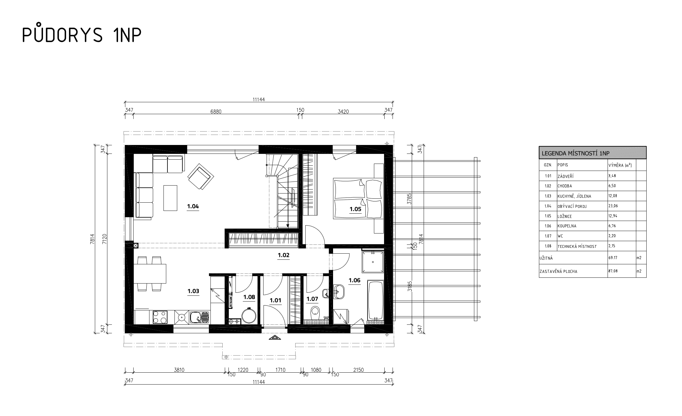
- Půdorys domu 11,14 x 7,81 m
- Užitná plocha 116,78 m²
- Zastavěná plocha 87,07 m²
- Sklon střechy 40°
KLASIK 117
Rodinný dům KLASIK 117 je dalším z typových domů od společnosti RD Rýmařov, který se dlouhodobě těší velké oblibě. Představuje ideální kompromis mezi bungalovem a patrovým domem. Jeho přednosti jsou zejména jednoduchý obdélníkový tvar a tradiční sedlová střecha, díky kterým skvěle zapadne jak do nové, tak starší zástavby. Dům KLASIK 117 poskytne komfortní, a především úsporné bydlení až čtyřčlenné rodině. Jeho dispozice je navržena tak, aby vyhovovala všem členům domácnosti a poskytovala jim dostatek prostoru. Součástí domu je také garážové stání formou nezastřešené pergoly.
Díky jednoduchému obdélníkovému půdorysu o rozměru 11,14 × 7,81 m tento dům umístíte na pozemek jakéhokoliv tvaru. Dům KLASIK 117 splňuje veškeré aspekty moderního bydlení. Je prostorný, vzdušný a s dostatkem světla. Přízemí je prosvětlené velkými okny, která vedou rovnou na terasu a propojí tak Váš domov se zahradou. Podkroví o ploše 46 m2 nabízí útulné, klidné pokoje, kde si každý člen domácnosti najde chvilku pro sebe. Samozřejmě nechybí ani dostatek úložného prostoru.
POSLAT DOTAZ
- +420 000 000 000
- info@bezcihel.cz
Adresa
- BEZCIHEL s.r.o
- C 92423/KSOS Krajský soud v Ostravě
- Třída Jiřího Pelikána 1389/5, Nová ulice
- 779 00 Olomouc
- IČ: 19268556
Kliknutím na tlačítko „ODESLAT“ souhlasíte se zpracováním vámi zadaných osobních údajů pouze za účelem zpětného kontaktování. Data zpracovávám striktně dle normy GDPR – zákon č. 110/2019 Sb. o zpracování osobních údajů. Zavazujeme se, že vámi zadané osobní údaje nebudeme nikde dlouhodobě evidovat, používat k marketingovým účelům, ani poskytovat třetím stranám. V případě podezření o zneužití prosím kontaktujte správce osobních údajů BEZCIHEL s. r. o. skrz e-mail info@bezcihel.cz






