VXD ALENA
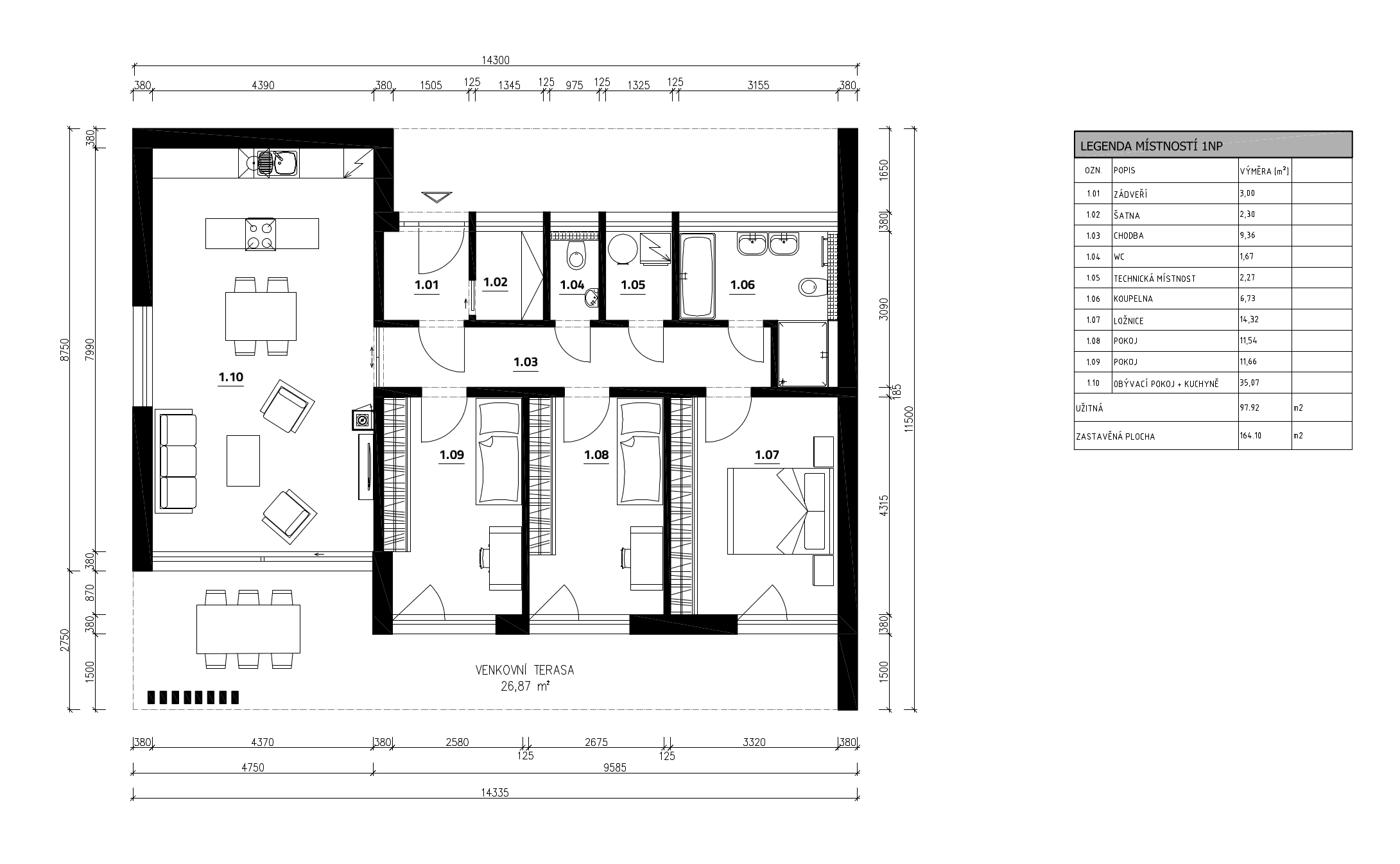
- Dispozice - 4+kk
- Půdorys domu 14.300 x 11.500 m
- Užitná plocha 100.1 m²
- Zastavěná plocha 164.1 m²
- Sklon střechy 35°
VXD ALENA
Dům ALENA, typový projekt bungalovu, představuje jednu z nejžádanějších koncepcí dispozice domu, a to ve dvou různých architektonických provedeních. Tento rodinný dům má obdélníkový půdorys a je dostupný v dvou variantách – KLASIK se sedlovou střechou a TREND se střechou plochou, aby vyhověl různým preferencím zákazníků.
Dispozice domu ALENA je výjimečně promyšlená. Část domu je mírně zasunutá, což umožňuje vytvoření prostorného závětří u vstupu a kryté terasy na druhé straně. Tato terasa je ideálním místem pro klidné posezení, jak pro obyvatele, tak pro případné návštěvy, které toto provedení zajisté ocení. Je propojena s obývacím pokojem a přístupná z každé z tří ložnic, což zajišťuje snadný přístup do zahrady bez narušení soukromí ostatních.
Obývací pokoj je spojený s kuchyňským koutem a jídelnou, což vytváří otevřený a přátelský prostor pro rodinné setkání a společné chvíle. Díky střešnímu oknu nebo světlíku je do pracovního prostoru přiváděno dostatek denního světla, což dojem z celého prostředí vždy značně vylepšuje.
V obou variantách dispozice najdeme samostatnou toaletu, koupelnu se sprchovým koutem a vanou a technickou místnost. Dům tedy nabízí vše, co potřebujete pro pohodlný a moderní život ve svém novém domově. Dům ALENA je připraven splnit vaše potřeby a přání v rámci vysokých nároků na bydlení.
POSLAT DOTAZ
- +420 000 000 000
- info@bezcihel.cz
Adresa
- BEZCIHEL s.r.o
- C 92423/KSOS Krajský soud v Ostravě
- Třída Jiřího Pelikána 1389/5, Nová ulice
- 779 00 Olomouc
- IČ: 19268556
Kliknutím na tlačítko „ODESLAT“ souhlasíte se zpracováním vámi zadaných osobních údajů pouze za účelem zpětného kontaktování. Data zpracovávám striktně dle normy GDPR – zákon č. 110/2019 Sb. o zpracování osobních údajů. Zavazujeme se, že vámi zadané osobní údaje nebudeme nikde dlouhodobě evidovat, používat k marketingovým účelům, ani poskytovat třetím stranám. V případě podezření o zneužití prosím kontaktujte správce osobních údajů BEZCIHEL s. r. o. skrz e-mail info@bezcihel.cz





