VXD B143

VXD B143

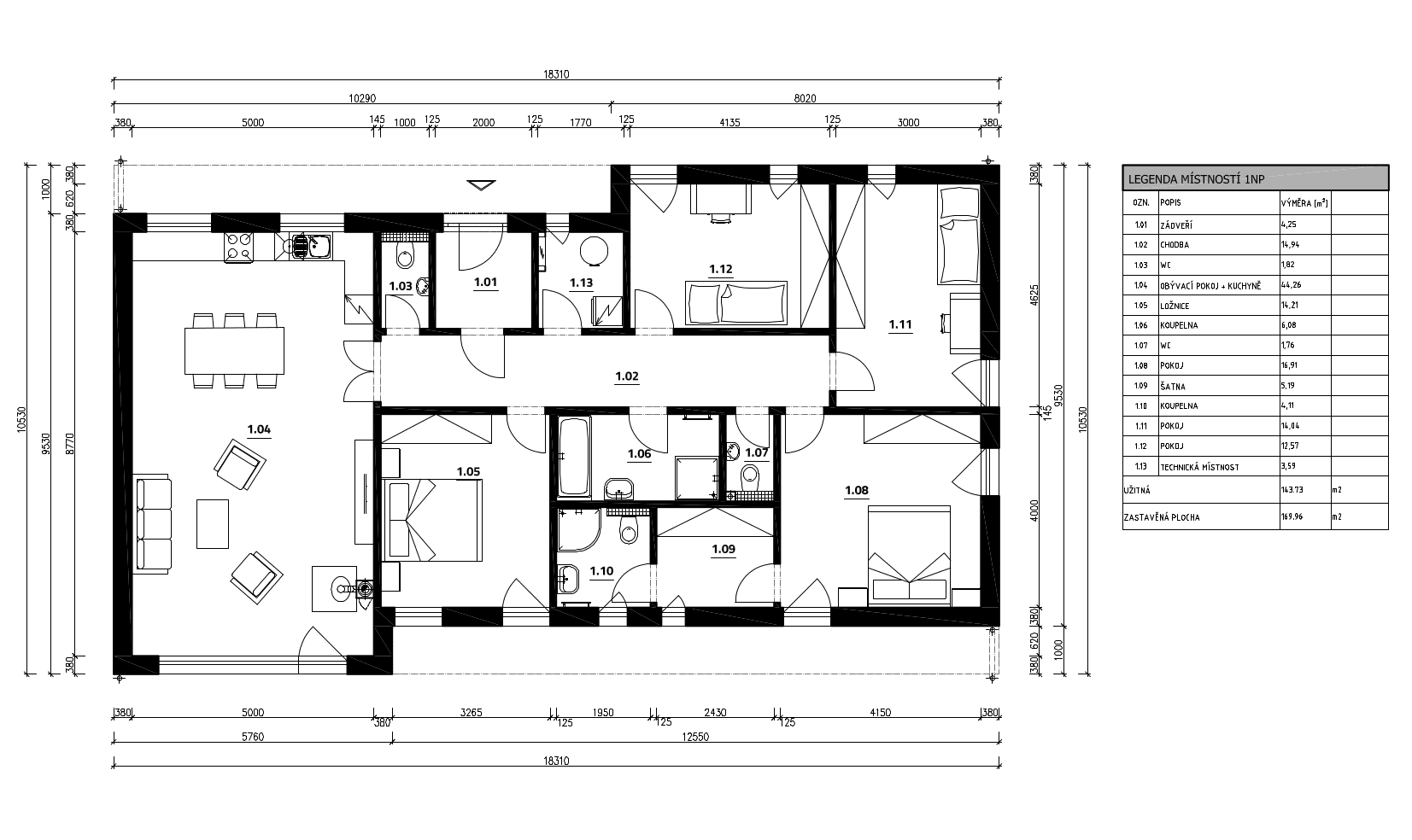
Bungalov B143 je domem, kde se pohodlně vejdete i s velkou rodinou, přáteli a známými a spousta místa ještě zbude. S velkorysou užitnou plochou 143m² totiž nabízí opravdu komfortní rozměrné bydlení, které si můžete užít naplno. Díky sedlové střeše získává tento dům tradiční a elegantní vzhled, uvnitř však skrývá mnoho praktických prvků, které vám zajistí bezkonkurenční bydlení. V B143 najdete ne dvě, ale dokonce tři toalety a dvě koupelny, což znamená dostatek soukromí pro všechny obyvatele. Jedním z unikátních a našich nejoblíbenějších prvků domu je soukromá koupelna spojená šatnou z ložnice, přístup je tedy do jedné z koupelen možný pouze přes ložnici. Pro rodiče či návštěvy může být vítaným dispozičním řešením v domě plném dalších členů domácnosti. Obrovský obývací pokoj je spojený s kuchyňským koutem, vytvářející tak otevřený a přívětivý prostor pro všechny v domě. Celkově zde najdete čtyři pokoje, takže budete mít vy i členové vaší rodiny dostatek místa pro všechny své potřeby a aktivity. Bungalov B143 od VEXTA je domovem, kde se můžete pohodlně usadit a užívat si společné chvíle s rodinou a blízkými, a to v opravdu prostorném a moderním prostředí. 

POSLAT DOTAZ

Adresa

Kliknutím na tlačítko „ODESLAT“ souhlasíte se zpracováním vámi zadaných osobních údajů pouze za účelem zpětného kontaktování. Data zpracovávám striktně dle normy GDPR – zákon č. 110/2019 Sb. o zpracování osobních údajů. Zavazujeme se, že vámi zadané osobní údaje nebudeme nikde dlouhodobě evidovat, používat k marketingovým účelům, ani poskytovat třetím stranám. V případě podezření o zneužití prosím kontaktujte správce osobních údajů BEZCIHEL s. r. o. skrz e-mail info@bezcihel.cz

Stáhněte si zdarma e-book

PŘEDPROJEKTOVÁ PŘÍPRAVA

aneb jak se nespálit při koupi pozemku

Zadejte své údaje a pošleme vám e-book, ve kterém se dozvíte na co si dát pozor při koupi pozemku a jak předejít drahým chybám ještě před zahájením projektu.