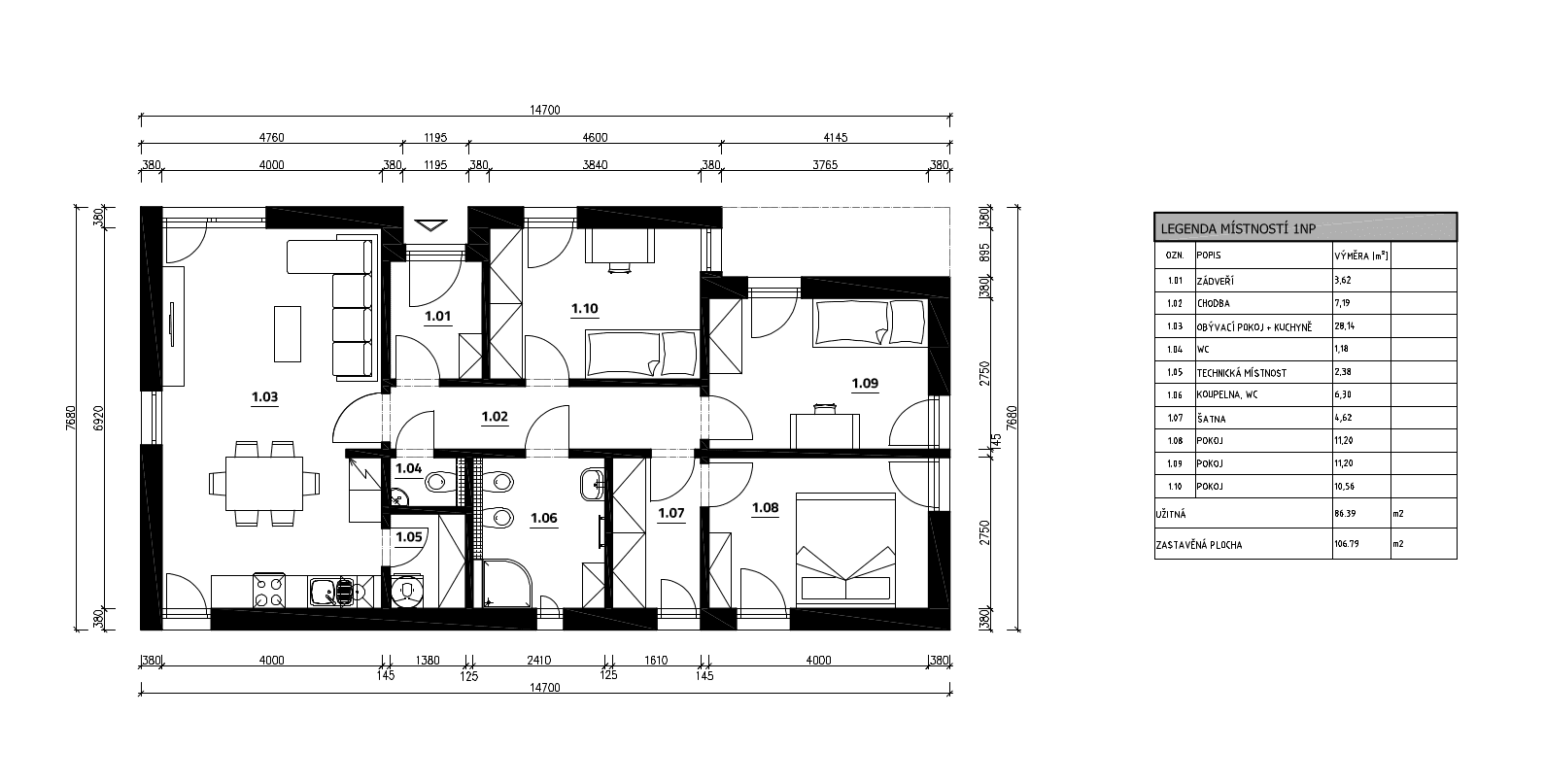
VXD B87
- Dispozice - 4+kk
- Půdorys domu 14,70 x 7,68 m
- Užitná plocha 86,39 m²
- Zastavěná plocha 106,79 m²
- Střecha plochá
VXD B87
Vítejte v domě B87 firmy VEXTA – moderním bungalovu, který kombinuje funkčnost s pohodlím. S jeho moderní plochou střechou se stává výrazným prvkem okolní zástavby. Celková užitná plocha tohoto bungalovu činí příjemných 90,17m2. Užijete si prostorný obývací pokoj propojený s kuchyňským koutem s přilehlou spíží. Co se týče soukromí, tento bungalov nezklame. Má samostatnou toaletu a koupelnu vybavenou sprchovým koutem, toaletou a bidetem. A co je nejlepší, ze tří pokojů mají dva přímý přístup na terasu. To znamená, že si můžete snadno vychutnávat čerstvý vzduch, slunečné dny a krásné výhledy z vašeho vlastního domova. Bungalov B87 je domem, který vám přinese moderní životní styl v krásném prostředí. Má vše, co potřebujete pro pohodlné a stylové bydlení, a to ve výjimečném provedení, které zaujme všechny návštěvníky. Tento bungalov je připraven uspokojit vaše potřeby pro bydlení ve všech směrech.
POSLAT DOTAZ
- +420 000 000 000
- info@bezcihel.cz
Adresa
- BEZCIHEL s.r.o
- C 92423/KSOS Krajský soud v Ostravě
- Třída Jiřího Pelikána 1389/5, Nová ulice
- 779 00 Olomouc
- IČ: 19268556
Kliknutím na tlačítko „ODESLAT“ souhlasíte se zpracováním vámi zadaných osobních údajů pouze za účelem zpětného kontaktování. Data zpracovávám striktně dle normy GDPR – zákon č. 110/2019 Sb. o zpracování osobních údajů. Zavazujeme se, že vámi zadané osobní údaje nebudeme nikde dlouhodobě evidovat, používat k marketingovým účelům, ani poskytovat třetím stranám. V případě podezření o zneužití prosím kontaktujte správce osobních údajů BEZCIHEL s. r. o. skrz e-mail info@bezcihel.cz




